Downtown Milwaukee Office Availability

875 E. Wisconsin Avenue

875 sits prominently along Wisconsin Avenue, offering breathtaking views of Lake Michigan and the Milwaukee Art Museum from every floor. With direct connectivity to the US Bank Center via Skyway, proximity to The Couture and its emerging retail amenities, and easy access to events along Lincoln Memorial Drive, the property delivers a standout tenant experience.

Stories

8

Average floor plate

27,568 SF

Contiguous availability

68,546 RSF

Base rent

$22.00 RSF NNN

About the building

A prominent address with premier views, connectivity, and a renewed tenant experience.

875 E. Wisconsin Avenue offers a rare combination of visibility, access, and tenant appeal in downtown Milwaukee. The building overlooks Lake Michigan and the Milwaukee Art Museum while connecting directly to major nearby destinations, including the US Bank Center Skyway and the growing amenity base around The Couture.

Wangard is making significant upgrades to the property, including activation of outdoor spaces, a refreshed tenant lounge, a training room, a fitness center, and lobby enhancements. These planned improvements are designed to elevate daily experience for office users while strengthening the building’s long-term competitive position.

Property details

Number of stories

8 stories

Average floor plate

27,568 SF

Base rent

$22.00 / RSF NNN

Operating expenses

$13.19 / RSF + utilities

Signage

Exterior building signage available

Parking

In-building: 2.0 / 1,000 SF starting at $185/stall/month
Museum Parking Structure: 1,000+ stalls starting at $162/stall/month

Space available

Flexible availability across floors 1–3 with large contiguous options.

875 E. Wisconsin Avenue currently offers availability on multiple floors, giving tenants the opportunity to secure smaller suites, large full-floor opportunities, or contiguous space across levels.

Current availability

3rd Floor

6,000 – 27,568 RSF

2nd Floor

6,000 – 27,568 RSF

1st Floor

3,370 RSF and 10,040 RSF

Total contiguous

68,546 RSF

Availability graphic for 875 E. Wisconsin Avenue

Floor plans

Plan options for first-floor suites, full-floor occupancy, and potential demise.

The current leasing program includes first-floor suites, full-floor opportunities on floors 2 and 3, and potential demise options for tenants seeking a more tailored footprint.

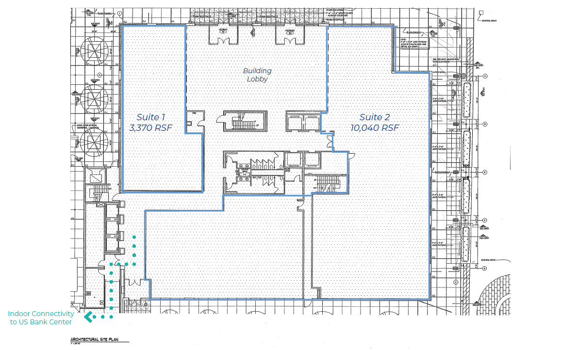
First Floor

Suite options include 3,370 RSF and 10,040 RSF.

First-floor plan at 875 E. Wisconsin Avenue

Floors 2 & 3 | Full Floor

27,568 RSF full-floor opportunity.

Full-floor plan for upper floors at 875 E. Wisconsin Avenue

Potential Demise Option 1

Approx. 20,285 RSF and 6,408 RSF.

Potential demise option 1 for upper floors at 875 E. Wisconsin Avenue

Potential Demise Option 2

Approx. 20,235 RSF and 6,936 RSF.

Potential demise option 2 for upper floors at 875 E. Wisconsin Avenue

Building improvements

A multi-phase improvement program designed around tenant experience.

Wangard’s investment plan for 875 E. Wisconsin Avenue focuses on both outdoor activation and upgraded indoor amenities. The result is a more compelling workplace environment for office users seeking quality, convenience, and character in the urban core.

Phase 1 (2025)

Outdoor renovations featuring activated green spaces, inviting lounge areas, and unbeatable lake-facing views.

Phase 2 (2025/2026)

Indoor amenity upgrades including a fitness center with showers, a 50-person training room, a new tenant lounge with outdoor access, and a refreshed lobby.

Lobby rendering for 875 E. Wisconsin Avenue improvements

Lobby refresh

A brighter, more contemporary arrival experience that aligns with the property’s position on Wisconsin Avenue.

Outdoor terrace and activated green space rendering for 875 E. Wisconsin Avenue

Outdoor activation

New outdoor gathering spaces intended to support informal meetings, tenant downtime, and premium views.

Tenant lounge rendering for 875 E. Wisconsin Avenue

Tenant lounge

A hospitality-forward lounge space designed to give tenants more flexibility throughout the workday.

Training room rendering for 875 E. Wisconsin Avenue

Training room

A 50-person training and meeting space that expands what tenants can host on-site.

Fitness center rendering for 875 E. Wisconsin Avenue

Fitness center with showers

A more complete on-site wellness offering designed to support modern workplace expectations and tenant retention.

Connectivity + location

Easy to reach, easy to explore, and positioned for a strong tenant experience.

875 E. Wisconsin Avenue offers a prominent downtown Milwaukee address with direct skyway connectivity, nearby parking options, and close proximity to the lakefront, Milwaukee Art Museum, Discovery World, The Couture, and I-794 access.

Interactive map

Explore the property location and launch turn-by-turn directions.

Visit the property

875 E. Wisconsin Avenue

Milwaukee, WI 53202

• Skyway connectivity to the US Bank Center

• Walkable access to lakefront attractions and downtown amenities

• Strong visibility along Wisconsin Avenue

• Convenient nearby parking options for tenants and visitors

Leasing inquiries

Ready to tour the building or discuss suite options? Jump directly to the Colliers broker contacts below.

See broker contacts

Leasing contacts

Contact Colliers for more information on 875 East.

For current suite availability, touring, and leasing discussions, reach out directly to the Colliers team below.

Colliers logo

Senior Vice President

Matt Fahey

Email Matt

Vice President

Jenna Maguire

Email Jenna

Downtown office opportunity

Looking for a connected Milwaukee office location with room to grow?

875 E. Wisconsin Avenue combines visibility, views, flexible leasing options, parking access, and meaningful amenity upgrades in one of downtown Milwaukee’s most established office corridors.